联系人:张盼
邮箱:809713794@qq.com
电话:15231705135
地址: 河北沧州市盐山县城南开发区
领路交通设施有限公司处于全国有名的管道制造基地河北—沧州,为制作我厂主要产品交通标志杆的原材料(钢管,法兰盘,加劲肋)提供了十分便利的条件,从选材入手,严把质量关,精致焊接致力打造精品标志杆,企业采用电脑CAD设计、制图,既可为用户设计图纸并生产,也可根据用户提供的图纸生产。并且拥有先进的生产设备,完善的生产流程;一批精良的技术人员,一支具有丰富制作安装经验的技术工人队伍;可以在短期内完成用户下达的任务。
先来了解一下标志杆
1、单柱式交通标志杆,是在一根立柱上安装标志板,中小型尺寸的警告、禁令、指示标志和小型指路标志等常常采用这种形式;
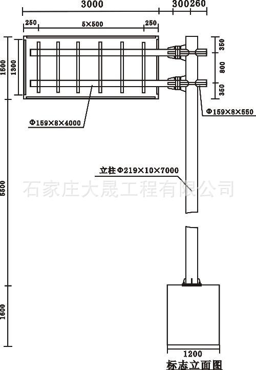
2、多柱式交通标志杆,是在两根及两根以上安装标志板,应用于长方形的指示或指路的标志;
3、悬臂式交通标志杆,是将标志板安装于悬臂上,标志下缘离地面的高度应大于该道路规定的净空高度,通常在柱式安装有困难道,路较宽、交通量较大、外侧车道大型车辆尊当内侧车道小型车辆视线,视距或视线受限制等情况下采用悬臂式交通标志杆;
4、门架式交通标志杆,安装标志板的是门架,标志下缘离地面的高度应大于该道路规定的净空高度,可在交通量较大、外侧车道大型车辆阻挡内侧车道小型车辆视线,受空间限制,柱式、悬臂式安装有困难交通留在较高运行速度下发生交织、分流和河流的路段等这几种情况下。
道路交通标志通常情况下设置在道路的右侧,司机容易看到的位置。对于像超车道、行车道、紧急停车带等车道设置道路交通标志时,在路侧设置是有困难的,它通常是通过龙门架设置在道路的上方,便于司机观察,解决悬臂式交通标志杆相互遮挡的问题。在高速公路终点附近,还将一些禁令或警告标志设置在中间分隔带内。采用钢管立柱;法兰;悬臂;栓组合而成;外表采用热镀锌、镀锌后静电喷涂。镀锌后的标志杆限可达20年以上,静电喷涂的标志杆外表美观,富有光泽,有多种颜色可选择。

交通标志杆的基本结构:道路交通标志杆、标志杆应由立杆、连接法兰、造型支臂、安装法兰及预埋钢结构构成。
立杆及其主要构件应为耐用结构,由能承受一定的机械应力,电动应力及热应力的材料构成,此材料和电器元件应采用防潮,无自爆,耐火或阻燃产品。
立杆及其主要构件的所有外露金属表面均应采用热浸镀锌层防护,镀锌层均匀且厚度不小于55μm
1、焊接工艺
整个杆体应无任何一处开裂、漏焊、连续气孔、咬边等,焊缝光滑平整,无凸凹起伏,无任何焊接缺陷,须提供焊接探伤报告。
2、电器门
a.电器门采用等离子切割。
b.电器门与灯体浑然一体,开门处不焊接凸台,结构强度高。
c.具备合理的操作空间,门内具有电器安装附件。
d.门与杆之间间隙应不超过1毫米,具备良好的防水性能。
e.有专门紧固系统,具备良好的防盗性能,其固定螺栓采用非通用专制工具开启。
f.电器门应有高互换性,门内有合理的操作空间,提供3%的电器门配件
g.在灯杆工作门内左下方可见处牢固地焊接一只m8×30螺栓与灯杆一起进行热镀锌处理,用于连接电缆pe线。

铝板制作的交通标志牌主要是使用时间长,使用时间5年以上是经济的,使用10年以上才具性价比,一般批发的铝板交通标志牌制作不但价格相对便宜使用寿命也能够得到保障。反光标志牌由于其较强的反光性能从而受到广大客户的青睐。反光交通指示牌制作材料大多由铝板制作而成的,首先在制作初期要将铝板切割成指导的形状及规格,其次将铝板洗净磨平防止铝板上的颗粒影响反光膜黏贴效果,后再将图案的反光膜黏贴在铝板表明即可。标志板与立柱采用铝槽通过抱箍螺丝固定。标志立柱和横梁:立柱和横梁均采用一般常用热扎无缝钢管。并符合GB167—输送流体用无缝钢管(GB/T8163-2008)的规定。标志立柱帽,采用普通碳素钢结构板,板厚3mm,表面热浸镀锌处理(含底座法兰盘),其中钢管、法兰盘及加劲肋等镀锌量为600g/m2,螺栓、螺母、垫片等镀锌量为350g/m2,钢管镀锌以后不可以再次线切。
道路交通标志杆增加了道路交通的性,更有效的增加道路交通概率,一直在努力探索交通设计的新方法,在产品规范的基础上,对比国外先进技术,改进国内交通新品。质量是企业效益的源泉:一方面,高质量产品与低质量产品相比,生产成本相差无几,但市场上的身价相差可能数倍;另一方面,高质量的生产制造过程降低了废品率和各种消耗,这种低成本的生产过程直接给企业带来经济效益。
在门框基础公路标志杆生产的重点应放在距基地的控制中心轴,应为准确测量实际尺寸数据门框横梁。根据数据来确定基本间距的基础上,必须签署基于控制小于5mm的间距偏差,交通标志杆应采用热浸酸内外表面放腐处理,厚度≥75um符合GB―/T13912-92标准.设计使用寿命应不低于30年,镀锌表面应光滑美观,颜色基本一致,捶击试验后不起皮、不剥落。提供镀锌检测报告。交通标志杆产品的造型及尺寸符合要求,整体美观大方,杆体表面光滑一致,色泽均匀。镀锌层光滑平整,喷塑层粘附力强而不剥落。