联系人:李春阳
邮箱:jingczs@163.com
电话:13523042632
地址: 河南郑州市金水区河南省郑州市中州大道商都路建业五栋大楼D座1207室
公司全称:深圳京创装饰设计工程有限公司郑州分公司
公司地址:郑州市郑东新区商都路建业五栋大楼D座1207
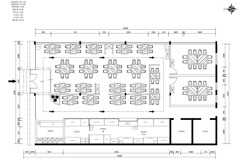
项目名称:老北京炙子烤肉店
项目类型:郑州烤肉店装修设计
项目面积:300㎡
项目地址:郑州
装修档次:中高档
装修风格:中式风格
装修造价:30万左右
设计说明:根据甲方所经营品类市场分析及客单价为主线,保留原有结构框架,充分利用现场结构,以小改动换取更佳改造效果。对餐位间距和人流动线进行梳理,改善用餐区域空间体验。根据后厨操作出品流程调整设备摆放提高出品效率,并做明档展示处理,增加互动性。装饰结构围绕老北京四合院为主题元素搭配相关软装展开设计。造型多以厂家定制为主,压缩现场施工周期,意为顾客营造浓郁的主题用餐氛围。
公司简介:深圳京创装饰成立于2000年,京创装饰郑州分公司专注于餐饮装修设计与施工,承接郑州中餐厅装修、郑州西餐厅装修、郑州茶餐厅装修、郑州咖啡厅装修、郑州美食城装修、郑州火锅店装修、郑州烧烤店装修、郑州烤鱼店装修、郑州快餐厅装修等餐饮空间的装饰装修设计和施工服务。公司有非常的餐饮装修设计队伍。全国餐厅装修设计案例达1000家以上,团队100人以上!餐厅设计,2000年创立至今19年设计经验「欢迎咨询」!

郑州烤肉店装修设计案例-老北京炙子烤肉店实景图

郑州烤肉店装修设计案例-老北京炙子烤肉店效果图

郑州烤肉店装修设计案例-老北京炙子烤肉店效果图

郑州烤肉店装修设计案例-老北京炙子烤肉店效果图

郑州烤肉店装修设计案例-老北京炙子烤肉店室内设计方案