联系人:周杜明
邮箱:65781216@qq.com
电话:13975821666
地址: 湖南株洲市荷塘区新华东路1557号银泰财富广场2938(3栋2908)室
注:图纸为湖南永云别墅建筑设计有限公司设计作品,拥有自主知识产权,受法律保护。图纸设计都是依照国家建筑行业标准设计的,对其结构受力安全执行建筑设计行业的强制性要求,即对别墅设计图纸结构安全负终身责任制。施工方在施工过程中图纸有看不明白或需要技术上支持的,拔打我们公司客服电话,我们将会热情为其解答。效果图展示:


本套图纸有施工图55张,效果图4张,包打印(效果图为A4彩图,施工图为A3大图),全国快递包邮,支持货到付款,不提供电子版图纸属性 图纸编号: AT083 层数: 三层 结构形式: 砖混结构 主体造价: 30-38万 主体开间: 11.1 进深: 12.9米 占地面积: 128.8平方米建筑面积: 354.78平方米 图纸内容 建筑 图: 建筑设计说明、工程做法表、地层平面图、二层平面图、三层平面图、屋顶平面图、正立面图、背立面图、左立面图、右立面图、1-1剖面图、楼梯大样图、节点详图、门窗表及门窗大样图;结构 图: 基础平面布置图、基础大样图、一层柱位平面布置图、二层柱位平面布置图、三层柱位平面布置图、一层梁结构平面图、二层梁结构平面图、三层梁结构平面图、屋面层梁结构平面图、二层板结构平面图、三层板结构平面图、屋面板结构平面图、楼梯大样图、节点配筋详图;给排水图:给排水设计说明、一层给排水平面图、二层给排水平面图、三层给排水平面图电气 图: 电气系统图、设备材料表、一层照明平面图、二层照明平面图、三层照明平面图、一层插座平面图、二层插座平面图、三层插座平面图、一层弱电平面图、二层弱电平面图、三层弱电平面图设计功能 一 层: 客厅,长辈房,餐厅,厨房,卫生间,车库,过厅二 层: 主卧窒(附卫生间及书房)、卧窒3间,公卫生间,起居室三 层: 卧室,活动室,卫生间,储藏室,露台户型图展示首层户型图:

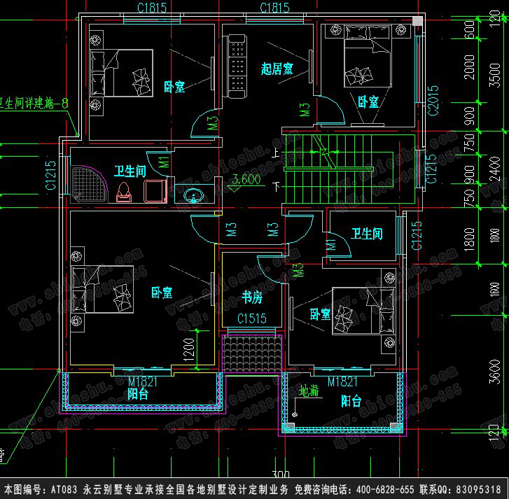
二层户型图:

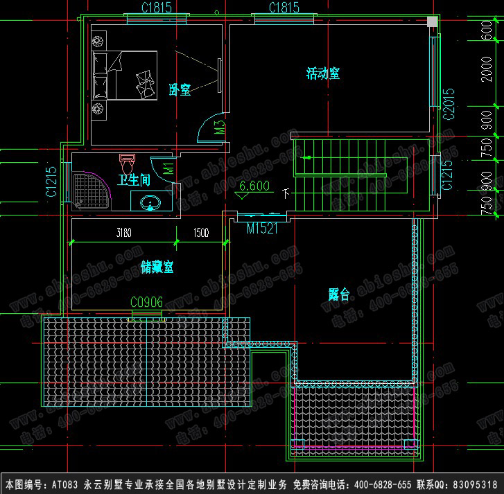
三层户型图:

立面施工图:



特别提示
本站图纸如果用于建造房屋,为保证建造安全、图纸和实际地质情况相吻合,以及各地施工做法及水平的差异,避免因为直接使用图纸造成的材料浪费或者返工,图纸务必请人士验证后,再进行使用!
如本站没有合适的图纸,可按照您的要求来进行设计;我们公司有资深设计师,设计经验丰富,质量保证,价格从优!